FLOOR PLANS 1: Location and Orientation

Communicate more clearly about the the location, position, and orientation of plan elements.

Category:

Documents and Descriptions

Level:

Intermediate

learn more

Get instant access

Enroll Now

Red outline of a larger square transforming into a smaller square, illustrating construction scaling or resizing concepts; includes a compass with North direction for measurement guidance.

Current Status

Not Enrolled

Price

Free with registration

Get Started

5 video lessons
over 2 hours of instruction
Over 30 + activities
Interactive Practice
Speak Naturally
Pronunciation Coaching
Authentic Drawings
Relate English to real-world documentation
Certificate
Take a final test and earn a certificate
Man using a laptop for construction-related English learning or communication, wearing glasses and a blue shirt, smiling at the camera.

Start Now!

Get the Skills. Build Confidence. Communicate Clearly.

Learn the English you need for your work.

Pronounce key expressions more naturally.

Earn a certificate and build your career.

Free course

Register for free access

Sign up

Try a sample unit

click to expand

Floor Plans 1 Overview

What You Will Learn

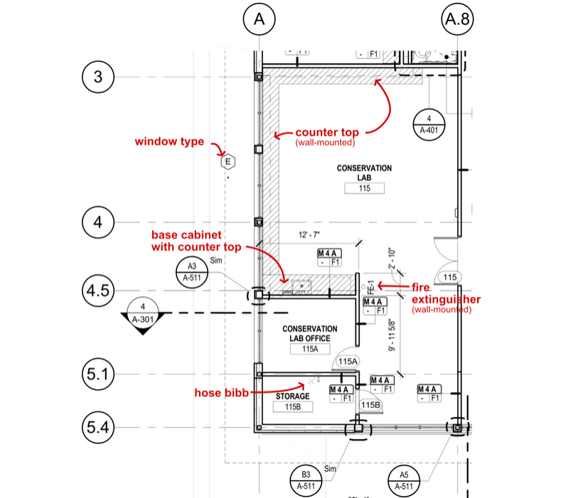
Floor Plans 1 teaches English vocabulary for reading and describing architectural floor plans. You will learn how to describe room locations, explain spatial relationships, and use direction vocabulary for floor plan orientation. This course helps architects, engineers, and construction professionals communicate more clearly about building layouts in English.

Who Should Take This Course

This course is for construction professionals who need English vocabulary for architectural floor plans:

Architects and Designers working on international projects need English to discuss spatial concepts, room layouts, and building organization with clients and project teams.

Engineers (structural, MEP, civil) must understand floor plan vocabulary to coordinate designs, discuss spatial requirements, and participate in design meetings in English.

Construction Managers and Site Supervisors use floor plans daily to coordinate work, explain locations to subcontractors, and communicate with owners about project progress.

Interior Designers and Space Planners need architectural vocabulary to describe layouts, discuss design concepts, and coordinate with architects on projects using English.

Students in architecture, engineering, or construction programs preparing for international careers benefit from specialized vocabulary training.

Learning Approach

The course uses a three-step learning sequence:

Think: Checkpoint activities help you identify which terms you know and which need focused study.

Study: Video lectures present vocabulary with real floor plan examples. Each video teaches meaning, form, and pronunciation together. Videos include practice for pronunciation and immediate application.

Practice: Interactive exercises help you apply vocabulary through labeling floor plan elements, describing spatial relationships, and writing short descriptions of layouts.

Continue Learning

After Floor Plans 1, continue with Floor Plans 2: Dimensions & Requirements. Floor Plans 2 teaches English for communicating dimensional information, size requirements, and plan changes on architectural drawings.

Start Learning Today

Enroll in Floor Plans 1: Location & Orientation to learn essential English for architectural floor plans. This self-paced online course provides practical language training for construction professionals working on international projects.

Course Contents

Module 1: Warm-up and introduction

Begin language study by reviewing and checking important concepts related to the topic.

Module 2: Relative Position

Explore and practice expressions related to position and space between things

Module 3: Plan Orientation

Language to describe the location of plan elements using gridlines and cardinal directions

Module 4: Assessment and Certificate

Take a final quiz and earn a completion certificate

Course Content

1. WARM-UP
1A. Introduction
1C. Video Lesson
1D. Practice
2. POSITION and ALIGNMENT
2A. Language Discovery
2B. Video Lesson
2C. Practice
2D. Speak Naturally
3. LOCATION and ORIENTATION
3A. Language Discovery
3B. Video Lesson
3C. Practice 2
4. ASSESSMENT and CERTIFICATE
Certificate Test
Floor Plans 1: Test

© 2025 Construction English

Privacy Policy | Legal and terms of use